AmeriPanel Homes
100 Harmon Street
Lexington, SC 29072
(803) 808-2241 Office
Info@AmeriPanelSC.com
Model A (
With Den
)
5 Bedroom, 4 Bath, 3072 sq ft
First Floor
Second Floor
Model H (
With Den & Office
)
5 Bedroom, 5 Bath, 4596 sq ft
First Floor
Second Floor
Model G (
With Den
)
5 Bedroom, 4 Bath, 3836 sq ft
First Floor
Second Floor
Model F (
With Den
)
5 Bedroom, 3.5 Bath, 3456 sq ft
First Floor
Second Floor
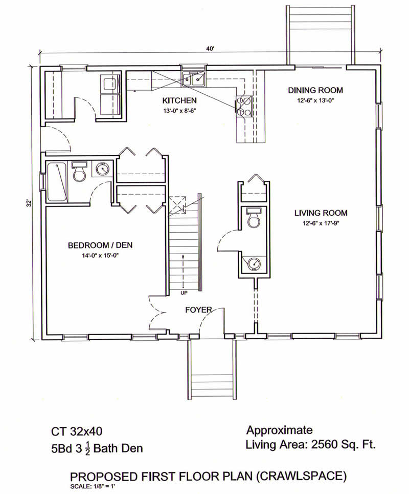
Model E (
With Den
)
5 Bedroom, 3.5 Bath, 2560 sq ft
First Floor
Second Floor
5 Bedroom, 4 Bath, 2780 sq ft
F
irst Floor
Second Floor
4 Bedroom, 3 Bath, 2340 sq ft
F
irst Floor
Second Floor
Model B
4 Bedroom, 3 Bath, 1908 sq ft
First Floor
Second Floor
Colonial Floor Plans
Ameripanel Homes of South Carolina. 2009 All rights reserved.